ソリッドワークス(SolidWorks)図面のトリム/エキスパンドメタルのような網目構造の一部を切り取る方法とは!?

図面を作成するときにエキスパンドメタルのような編目構造のものがあるとその下にある構造物がよく見えないときってあるよね。それだと、裏側から見た図面も必要になっちゃいます。今回はそんな場合に備えてダッソーさんもビックリのヒットアイテム部品の一部だけトリムする方法を掲載します。さすがSolidWorks図面機能もできないことはほぼない!

 

※SolidWorksを導入するなら最適なパソコンを選定しないと後で買い直しになっちゃうから、必ず検討してね。
>>>3D-CADのパソコン選定はコチラ

どんなとき?

みなさんは感がいいからわかっちゃってると思います。その場合はこの見出しは飛ばして次の見出しに進んでね。

「下の構造物がよく見えない」ってなに!?って方は画像と図面を用意しますので、ココの見出しを見てから次に進んでね。

アングルで筐体にしてから上にエキスパンドメタルを貼っています。

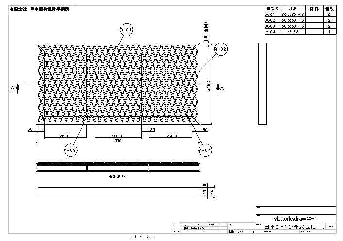
上記のモデルを図面にすると画像のようになります。

 

筐体のアングルの寸法や形状がエキスパンドメタルの下敷きになって見えないじゃん。


こんな感じの図面なら下の筐体部分も見やすくなります。

次の項目は上記の図面の作成方法です。

プロも絶賛! 見やすい図面作成

皆さんも、設計を生業としていますからプロですよね。図面だって見にくいよりは、見やすいほうがいいですよね。誤作も防げるし、いちいち作業者に説明しなくてもいいし、製作後の保証にもなるし…

ここからは、前項で紹介したエキスパンドメタルなどで隠れた部分をみえるようにする方法の手順です。

 

レイヤーを変更しよう!

エキスパンドメタルの部分を適当なレイヤー名前を付けてレイヤー変更しておきましょう。今回は「エキスパンドメタル全部」にしました。

レイヤー変更の方法は下記URLでどうぞ
>>>レイヤー変更はコチラ

エキスパンドメタル以外の部品を全部非表示にしておきます。

 

 

動画紹介

 

締めの言葉

 

>>>前のページ
>>>INDEX

コメント