組立図と部品図
ここでは部品図のテンプレートを作成するためのプロパティのリンクについて解説しますが、組立図と部品図の違いも少しふれておきます。
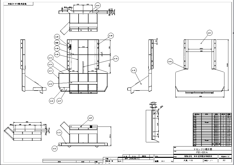
組立図
画像のように組立図は部品を組み立てるときに使う図面をいいます。
組立図の言葉の意味の決まりはありません、ココではそのように扱ってるだけです。
部品図は組立図で記されている各部品の詳細が書かれている図面です。
こちらもJISなどの規格で決められているわけではありません。一般的に呼ばれているだけです。
以上が組立図と部品図の違いです。ここではこれ以上の解説はしません、ご了承ください。
H2見出し-2
説明
H3見出し
説明
H2見出し
説明
H3見出し
説明
動画紹介
締めの言葉

コメント